A shocking revelation has emerged as China's proposed 'super-embassy' in London comes under intense scrutiny, with a senior security expert warning that the facility could become a clandestine hub for espionage across Europe.
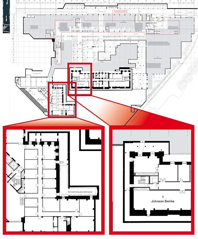
Unredacted documents, leaked overnight, reveal a hidden chamber located in the north-west corner of the building—just metres from a critical fibre-optic cable network that transmits vast amounts of financial data from the City of London and Canary Wharf.
The proximity of this secret room to such a vital infrastructure has sparked immediate alarm among intelligence analysts and policymakers, raising urgent questions about the potential for surveillance and data interception.
Professor Anthony Glees, a renowned expert in intelligence and security at the University of Buckingham, has described the situation as 'absolutely mad,' emphasizing the inherent risks of allowing China to proceed with the project. 'You can see from the plans how close the rooms run to those cables—they can be tapped very easily,' he told LBC's Nick Ferrari during a tense breakfast interview. 'There are also heating systems suitable for large servers.
In my view, this would not just spy on the UK, it would become the Chinese intelligence hub for the whole of Europe.' His comments underscore a growing unease about the strategic implications of the embassy's design and location, which could grant Beijing unprecedented access to sensitive financial and communications networks.
The controversy has intensified as a group of Labour MPs has intervened, urging Prime Minister Keir Starmer to reject the plans.
In a letter to Communities Secretary Steve Reed, the MPs highlighted 'significant and unresolved' security concerns, arguing that the embassy could be used to 'step up intimidation' against dissidents.
Sarah Champion, a member of the Joint Committee on the National Security Strategy, pointed to China's recent history of espionage, interference activities, and bounties offered against UK-based Hong Kongers. 'This embassy would sit above sensitive infrastructure critical to both the UK's economic and national security,' she warned, adding that the risks are too great to ignore.

The leaked plans also reveal a triangular secret room, measuring up to 40 metres across and 2-3 metres deep, strategically positioned within the embassy complex.
Experts have raised concerns that the room's dimensions and layout could accommodate advanced surveillance equipment or servers, further amplifying fears of its potential use for intelligence gathering.
Professor Glees has also drawn parallels to a 2022 incident in Manchester, where a Hong Kong democracy protester was allegedly dragged into the Chinese consulate and assaulted, suggesting the embassy's scale and design could be used to detain or intimidate critics.
Despite these warnings, Downing Street has insisted that national security concerns have been 'considered and addressed' in the planning process.
The Prime Minister's official spokesman reiterated that the decision on the embassy's approval would be made by the Secretary of State for Housing, Communities and Local Government by 20 January. 'This is a quasi-judicial process, and an independent planning decision will be made in due course,' the spokesperson said, refusing to comment further on security details.
However, the timing of the potential decision—just days before the deadline—has only heightened the stakes, as the UK faces a critical juncture in balancing diplomatic relations with China against the imperative to safeguard national security.
As the debate escalates, the focus remains on the embassy's hidden chamber and its proximity to the UK's most sensitive infrastructure.

With the clock ticking toward the 20 January deadline, the world watches to see whether the UK will heed the warnings of experts and MPs or proceed with a project that could redefine the boundaries of espionage in the 21st century.
A controversial plan for China's new diplomatic headquarters in London has reignited fears of espionage, with leaked documents revealing the site's proximity to critical communications infrastructure and the inclusion of 'spy dungeons' in its design.
The proposed 'super-embassy'—set to be built on the former Royal Mint site pending approval from Prime Minister Sir Keir Starmer—has sparked intense debate among lawmakers, security experts, and the public, raising questions about national security and the potential use of the facility as a covert intelligence hub.
According to The Telegraph, the building would include at least two air extraction systems, suggesting it could house heat-generating equipment such as high-performance computers.
This detail, coupled with the discovery of 208 secret rooms—most of which are hidden from the public in planning proposals—has fueled speculation about the embassy's true purpose.
Many of these rooms, located directly beneath the proposed structure, are positioned near vital underground communications cables running through the City of London, owned by companies like BT, Colt Technologies, and Verizon.
These cables serve as the backbone of financial and data traffic between the City and Canary Wharf, as well as three major data centers, including the London Stock Exchange.
MPs across the political spectrum have voiced concerns, urging the government to reject the application for the embassy on the grounds of national security.

Critics argue that the proximity of the embassy to these critical communications lines could enable China to tap into the cables, allowing the country to eavesdrop on sensitive information.
Security expert Professor Alan Woodward has called the layout a 'red flag,' warning that the close placement of the cables to the building would be an 'enormous temptation' for China to exploit for espionage purposes.
The controversy dates back to 2018, when China purchased the 215,280 sq ft site for £255 million from the Crown Estate.
At the time, security fears were immediately raised due to the land's location near the Square Mile's underground communications network.
Recent revelations from The Mail on Sunday have only deepened these concerns, with planning documents revealing the existence of 'spy dungeons'—two suites of basement rooms and a tunnel, with their purpose redacted for security reasons.
The documents also indicate that the outer wall of a chamber adjacent to the cables would be demolished and rebuilt, further amplifying fears of potential surveillance activities.
Diplomatic sources have confirmed that the embassy would include a 'spy campus,' providing on-site accommodation for over 200 intelligence officers.

This development has drawn sharp criticism from opposition figures, including Shadow Justice Secretary Robert Jenrick, who called the unredacted plans 'shocking' and accused the government of prioritizing diplomatic relations with China over national security.
Jenrick's comments were made on X, where he mocked the Prime Minister's potential approval of the plans ahead of his upcoming visit to China—a move seen as an attempt to smooth over tensions with President Xi Jinping after a series of planning delays.
China has dismissed allegations that the embassy could serve as an espionage hub, while BT has stated that it has 'robust security measures in place' to protect its infrastructure.
However, the shadow of doubt remains, with many questioning whether the government has adequately addressed the risks posed by the embassy's design and location.
As the debate intensifies, the fate of the Royal Mint site hangs in the balance, with the potential for a diplomatic showdown between the UK and China over the future of one of London's most sensitive pieces of real estate.
Those who have fled China's regime in Hong Kong have also expressed fears that the new embassy could be used as a base to track and apprehend dissidents.
The combination of the site's strategic location, the inclusion of unlabelled basement rooms, and the potential for surveillance has created a perfect storm of anxiety among security analysts and the public alike.
With the Prime Minister's decision looming, the world watches to see whether the UK will prioritize security or accommodate China's ambitions on its soil.